CONSTRUCTION D’UNE SCENE DE MUSIQUES ACTUELLES A NIMES
Premier
équipement à venir requalifier le site, la SMAC de Nîmes
en sera à la fois l’amorce mais également l’emblème.
L’organisation générale conforte et renforce la
structure urbaine, pensée en bandes parallèles au
boulevard urbain.
L’image architecturale offerte joue de la confrontation de
cette forme simple et de sa peau « spectaculaire ».
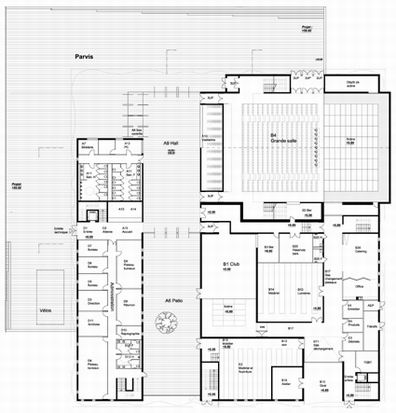
C’est une vaste « plaque » aux contours
quasiment carrés, trouée en son centre par un patio enchâssé
dans des « rideaux d’acier doré » dont émerge
le volume de la grande salle.
Ce bâtiment est destiné à recevoir un nombreux public.
Nous avons donc tenu à une sorte « d’évidence »
dans l’agen-cement des différentes fonctions.
Le parc musical, tout en plis, en courbes, en légers
reliefs, coule et ondule comme le rideau métallique de
la SMAC, en suivant les lignes de pentes.
Concours
janvier 2008 - Surf HO: 4 250 m2
M.O : Communauté d'agglomération Nîmes Métropole
Fabre et Perrotet -STOA-Chgt à Vue-Labeyrie-Vivie-Adret-
R2m-Secmo
Coût : 10 025 000 €HT









