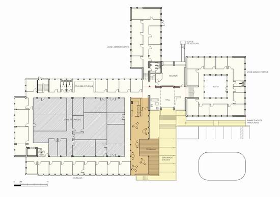
BUREAUX ET LABORATOIRES DE INNATE PHARMA A MARSEILLE
Pour faire face à un développement accéléré, la société INNATE PHARMA a choisi d’installer ses laboratoires et ses bureaux dans le bâtiment construit en 1970 pour abriter le centre régional d’informatique. Le projet répond à la nécessité d’une remise en état des façades abîmées par le temps. Parallèlement, il prend en considération le besoin « d’image » souhaité par la société. Ainsi, les façades orientées à l’Ouest reçoivent un nouveau système de brise-soleil dont la conception est destinée à filtrer la lumière et à étirer le bâtiment. L’organisation d’une cafétéria génère sur la façade sud la création d’une terrasse qui en lui donnant de l’épaisseur accompagne et re-qualifie l’accès principal au bâtiment. Une esplanade sera également aménagée devant le hall pour valoriser l’accès général et écarter les voitures du bâtiment.
Livraison juin 2008
Surf HO : 3 000 m2
M.O : Innate Pharma - BET : EVAL
Coût : 4 500 000 €HT









